Cerca nel blog

Musei Italiani su Pinterest

Museo archeologico di Santa Maria dei Raccomandati

Il Museo archeologico di Santa Maria dei Raccomandati in L'Aquila è un museo non ancora ufficialmente aperto. Ha sede nell'ex convento che dà sul Corso del capoluogo abruzzese e ospita un'importante collezione archeologica della regione.

 

Tra i pezzi esposti, il famoso letto d'osso. All'interno del complesso si trova la chiesa di Santa Maria dei Raccomandati, ricostruita nel 1825, contenente un affresco cinquecentesco della Madonna.

Museo archeologico di Santa Maria dei Raccomandati

Progetto esecutivo di restauro e di adattamento a museo civico dell’ex Convento di S.Maria dei Raccomandati nella città di L’Aquila.

Sandro Ranellucci — L'aquila .complesso Di S.maria Dei Raccomandati.progetto Di Restauro E Allestimento Del Museo Civico.

Vista prospettica dello spazio mostre temporanee.

 

La premessa essenziale ad ogni azione di recupero per una nuova utilizzazione del complesso monumentale dell’ex convento di S. Maria dei Raccomandati in L’Aquila è costituita dal suo integrale restauro che partendo dal risanamento statico-strutturale arrivi fino alla riconsiderazione del più minuto dettaglio architettonico. A tal fine dovranno eseguirsi opere di consolidamento delle murature (anche se in discreto stato di consistenza) e delle strutture orizzontale in vista soprattutto di quell’uso museale che si intende attribuire a gan parte del complesso e per il quale si richiedono paticolari portanze delle strutture stesse.

Sandro Ranellucci — L'aquila .complesso Di S.maria Dei Raccomandati.progetto Di Restauro E Allestimento Del Museo Civico.

Vista prospettica della corte coperta.

 

Si dovrà inoltre procedere al risanamento di tutte le coperture e alle loro strutture portanti affinchè, pur conservandone le originarie caratteristiche tecnologiche, siano rese sicure da ogni rischio di futuro degrado e quindi di compromissione della conservazione del complesso.

Sandro Ranellucci — L'aquila .complesso Di S.maria Dei Raccomandati.progetto Di Restauro E Allestimento Del Museo Civico.

Vista prospttica della galleria d'arte contemporanea.

 

Per le operazioni di restauro più strettamente architettonico, mentre si procederà evitando la perdita del benché minimo segno della stratificazione storica subita nel tempo dal complesso monumentale, si provvederà alla eliminazione di tutte le manomissioni, le trasformazioni e le superfetazioni che ne hanno snaturato la distribuzione, la forma e la qualità degli spazi architettonici.

Sandro Ranellucci — L'aquila .complesso Di S.maria Dei Raccomandati.progetto Di Restauro E Allestimento Del Museo Civico.

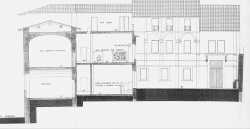
Sezione sulla corte coperta e sul giardino.

 

A tal proposito un particolare intervento è stato studiato per la ex chiesa di Santa Maria dei Raccomandati che fu brutalmente tagliata in due da un solaio a voltine su pilastri in muratura, maturando totalmente lo spazio architettonico originario. Per recuperare tale spazio e riproporlo nella sua unitarietà è stata prevista la demolizione della struttura di cui sopra; la conservazione delle poche tracce ancora esistenti delle decorazioni parietali, la ricostruzione formale della volta originaria di cui è stata conservata la traccia nella parete di fondo della sala ricavata sopra il solaio e utilizzata la struttura metallica di tale ricostruzione per consolidare la parete esterna di via Accursio. Tale intervento dettagliatamente illustrato nelle tavole di progetto, ha consentito di sostituire all’attuale solaio una leggera galleria pensile indipendentemente dalle pareti della chiesa che ne recupera in parte la superficie utile. Con tale soluzione si ritiene di aver risolto sia il problema del restauro statico e formale dello spazio originario sia quello di utilizzare correttamente tale spazio senza la pretesa di realizzare una ipotetica ricostruzione di esso.

Sandro Ranellucci — L'aquila .complesso Di S.maria Dei Raccomandati.progetto Di Restauro E Allestimento Del Museo Civico.

Sezione sul giardino e sulle sale espositive.

 

Inoltre le tramezzature utilitarie realizzate in funzione delle varie destinazioni d’uso, le soffittature che occultano le strutture voltate di copertura e tutte le altre opere che impediscono la “rilettura” dello storico complesso saranno eliminate o comunque ne sarà ridotta l’incidenza negativa. Stessa sorte subiranno le opere di finitura quali gli intonaci, i pavimenti, gli infissi di porte e di finestre, ecc.

Sandro Ranellucci — L'aquila .complesso Di S.maria Dei Raccomandati.progetto Di Restauro E Allestimento Del Museo Civico.

Dettaglio costruttivo di allestimento museale della pinacoteca.

 

Nel programma di nuova utilizzazione sono anche previste le integrazioni dei mezzi di comunicazione interna verticale mediante la creazione di una nuova grande sala a servizio del museo, di un ascensore per il pubblico e per i trasporti interni del materiale del museo.

Sandro Ranellucci — L'aquila .complesso Di S.maria Dei Raccomandati.progetto Di Restauro E Allestimento Del Museo Civico.

Dettaglio costruttivo di allestimento museale della pinacoteca.

 

Alle operazioni di cui sopra dovranno seguire i rifacimenti di tutte le opere di finitura nonché le integrazioni di alcune di esse; inoltre, specialmente nella cospicua parte del complesso destinata a museo, dovranno operarsi aperture e chiusure di vani, di porte, di passaggi, onde realizzare itinerari di visita comodi, razionali e sicuri per i frequentatori.

Sandro Ranellucci — L'aquila .complesso Di S.maria Dei Raccomandati.progetto Di Restauro E Allestimento Del Museo Civico.

Dettaglio costruttivo di allestimento museale della pinacoteca.

 

A tutte le opere schematicamente suddescritte dovrà aggiungersi il capitolo dell’impiantistica, dal normale riscaldamento al condizionamento dell’aria, dal generale impianto elettrico ai complessi sistemi di illuminazione degli spazi museali, dagli impianti di segnalazione antifurto ed antincendio al più moderno sistema di spegnimento con gas Alon e così via.

Sandro Ranellucci — L'aquila .complesso Di S.maria Dei Raccomandati.progetto Di Restauro E Allestimento Del Museo Civico.

Dettaglio costruttivo di allestimento museale della pinacoteca.

 

Il complesso delle opere che si prevedono nella presente relazione e quelle descritte nel capitolo seguente riferite al museo, realizzeranno un totale recupero del complesso e sarà garantita oltre la sua conservazione quale bene culturale per se stesso, la creazione di un centro di cultura attivo quale strumento indispensabile alla collettività aquilana, e non solo aquilana, per la sua crescita civile e culturale.

Sandro Ranellucci — L'aquila .complesso Di S.maria Dei Raccomandati.progetto Di Restauro E Allestimento Del Museo Civico.

Dettaglio costruttivo di allestimento museale della pinacoteca.

 

Tutte le opere di consolidamento, risanamento e integrazione del complesso monumentale, sono state chiaramente indicate nelle tavole di progetto che accanto a quelle di rilievo sono state suddivise nelle specifiche categorie di lavoro (restauro-impianti-allestimento museografico-aredamento) e definite nei particolari costruttivi e decorativi.

Sandro Ranellucci — L'aquila .complesso Di S.maria Dei Raccomandati.progetto Di Restauro E Allestimento Del Museo Civico.

Dettaglio costruttivo di allestimento museale della pinacoteca.

 

Utilizzazione e adattamento a museo.

Sandro Ranellucci — L'aquila .complesso Di S.maria Dei Raccomandati.progetto Di Restauro E Allestimento Del Museo Civico.

Dettaglio costruttivo di allestimento museale della pinacoteca.

 

Dell’intero edificio di cui si propone il restauro e la ristrutturazione una cospicua parte di esso, e cioé oltre milleduecento metri quadrati, verrà destinato a funzione museale. Tale funzione va intesa nella più vasta e moderna accezione del termine. Non un museo specialistico e per specialisti, quindi, ma un museo utilizzabile da tutti i cittadini per la loro più generalizzata crescita culturale. Un istituto concepito come esposizione di un complesso di documentazioni storico-artistiche estese a più campi possibili e capace perciò di offrire ai frequentatori il massimo delle risposte ai loro vari diversi interessi.

Sandro Ranellucci — L'aquila .complesso Di S.maria Dei Raccomandati.progetto Di Restauro E Allestimento Del Museo Civico.

Dettaglio costruttivo di allestimento museale della pinacoteca.

 

Un istituto cioé che, al dilà delle didascalie indicanti nel presente progetto generale la destinazione dei varii spazi, sia improntato alla massima vitalità mediante una gestione moderna e dinamica che possa stimolare l’interesse alla visita, mostrando le raccolte dei vari settori in modi diversi, agganciandole variamente a temi storici o di altra natura, ottenendo così che la loro conoscenza e comprensione risulti completa ed esauriente.

Sandro Ranellucci — L'aquila .complesso Di S.maria Dei Raccomandati.progetto Di Restauro E Allestimento Del Museo Civico.

Dettaglio costruttivo di allestimento museale della pinacoteca.

 

Per riuscire ad ottenere una gestione di questo tipo occorre dotare la sede del museo di attrezzature espositive e ricettive duttili e flessibili, adatte cioè ad evitare la perenne staticità del museo tradizionale e far sì, al contrario, che esso periodicamente si presenti con volti e percorrenze nuove e associ alla fruizione contemplativa soprattutto quella conoscitiva e riesca altresì a concentrare nei suoi spazi interni ed esterni la più ricca varietà di manifestazioni culturali: musica-teatro-cinema ecc., realizzando in tal modo un vero centro polivalente di diffusione della cultura.

Sandro Ranellucci — L'aquila .complesso Di S.maria Dei Raccomandati.progetto Di Restauro E Allestimento Del Museo Civico.

Dettaglio costruttivo di allestimento museale della pinacoteca.

 

Le soluzioni adottate nelle varie sezioni dell’istituendo museo civico si ispirano ai più avanzati criteri museologici e museografici. Grazie all’ampiezza e alla qualità degli spazi architettonici preesistenti esse non hanno richiesto, come spesso accade, soluzioni di compromesso. Tutti i valori museali propri dell’edificio sono stati riscoperti ed esaltati, utilizzando le stesse attrezzature espositive, conservando il più armonico rapporto tra i valori del contenuto e quelli del contenitore, evitando qualsiasi forma di subordinazione degli uni rispetto agli altri.

Sandro Ranellucci — L'aquila .complesso Di S.maria Dei Raccomandati.progetto Di Restauro E Allestimento Del Museo Civico.

Dettaglio costruttivo delle vetrine sospese e della soffittatura della sezione archeologica.

 

Un particolare impegno è stato posto nella sistemazione degli spazi aperti sia per se stessi sia per la presenza di alcune essenze arboree di grande pregio. Al primo di tali spazi, comunicante con l’atrio d’ingresso, è stato conservato il suo carattere di lapidario, quale complesso di reperti marmorei di provenienza locale, opportunamente selezionati, distribuiti ed esposti organicamente al di sotto di una diafana copertura di forma e dimensione, suggerite dalla suggestiva invadenza della chioma del gigantesco cedro del Libano a dimora nel secondo spazio aperto. In tale secondo spazio invece si è cercato di realizare un giardino più articolato ed adattabile a varie funzioni culturali all’aperto come spettacoli, balletti, concerti ecc. ecc.

Sandro Ranellucci — L'aquila .complesso Di S.maria Dei Raccomandati.progetto Di Restauro E Allestimento Del Museo Civico.

Dettaglio costruttivo delle vetrine sospese e della soffittatura della sezione archeologica.

 

Tutti gli interventi previsti sono stati studiati nei minimi particolari esecutivi, nonché visualizzati in una serie di vedute prospettiche degli episodi più significativi del progetto, come rilevabile dalle numerose tavole grafiche.

Sandro Ranellucci — L'aquila .complesso Di S.maria Dei Raccomandati.progetto Di Restauro E Allestimento Del Museo Civico.

Dettaglio costruttivo delle vetrine sospese e della soffittatura della sezione archeologica.

 

Sandro Ranellucci — L'aquila .complesso Di S.maria Dei Raccomandati.progetto Di Restauro E Allestimento Del Museo Civico.

Dettaglio costruttivo delle vetrine sospese e della soffittatura della sezione archeologica.

Se ti è piaciuto questo articolo, iscriviti al feed cliccando sull'immagine qui sotto per essere informato sui nuovi contenuti del blog:

rss feed

Nessun commento: